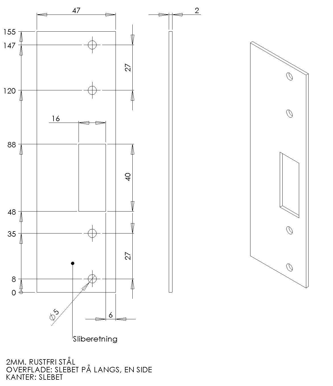
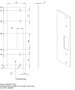
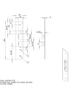
Slutblik – 47 x 155 x 2

kr. 225,00

Store mængderabatter
Stk
5 - 19
20 - 50
Varenummer (SKU): MA-040-02 Kategorier: ,